DEPTHOFFICE
Projects
About
Philosophy
Awards
Team
Contact
Torch
Texts
Status: Built
Date: 2018
Category: Commercial
Location: Kerman
Concept Diagram
Images
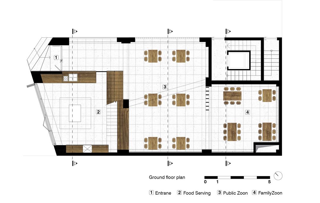
Plans