DEPTHOFFICE
Projects
About
Philosophy
Awards
Team
Contact
Ajor naqsh
Texts
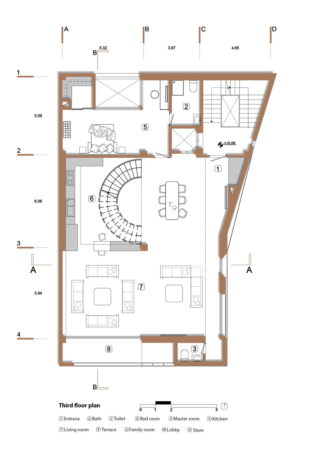
Status: Built
Date: 2019
Category: Apartment
Location: Kerman
Images
Plans